© MTM co.,ltd
ホーム
物件情報
設備・仕様
施工の流れ
会社概要
交通のご案内
お問い合わせ
Property Information
物件詳細
新築戸建
中野区本町6丁目 全1棟
中野本町6丁目イメージパース
平面図
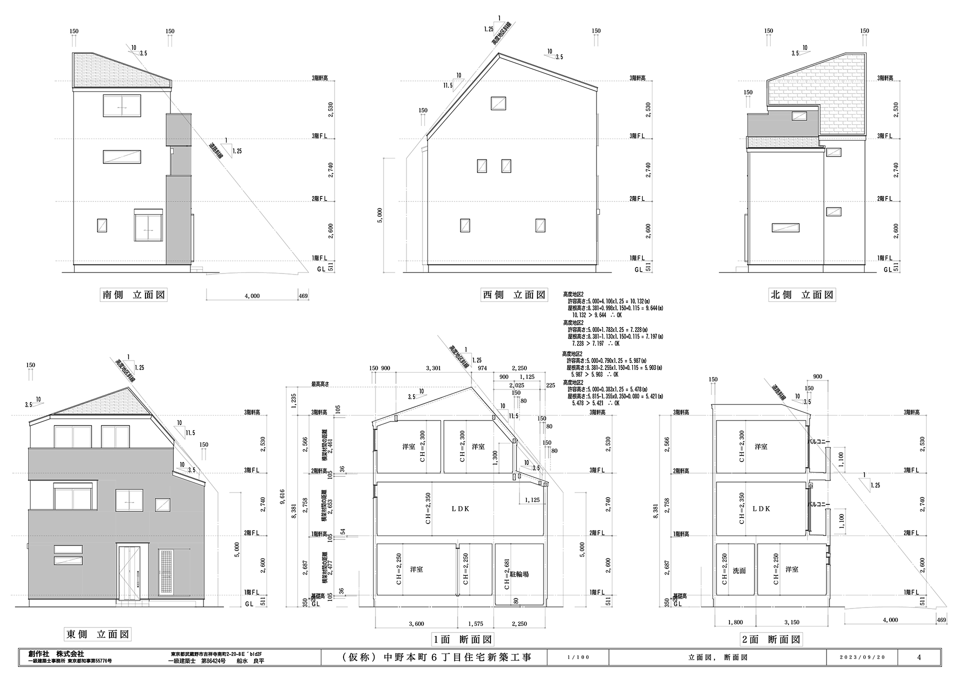
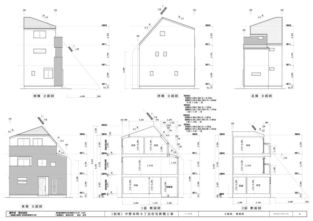
立面図・断面図
中野本町6丁目イメージパース
平面図
立面図・断面図
土地
面積
建物
面積
新築価格
A号棟
56.22㎡
94.55㎡
契約完了
B号棟
契約完了
C号棟
契約完了
D号棟
契約完了
E号棟
契約完了
F号棟
契約完了