新築戸建
住所: 杉並区久我山3丁目10 番地
交通: 京王井の頭線「久我山」駅 徒歩約10分
久我山3丁目住宅AB棟新築工事パース_2面-パース-スタジオ.png)
(仮称)久我山3丁目住宅AB棟新築工事パース_2面 パース スタジオ

A区画-図面

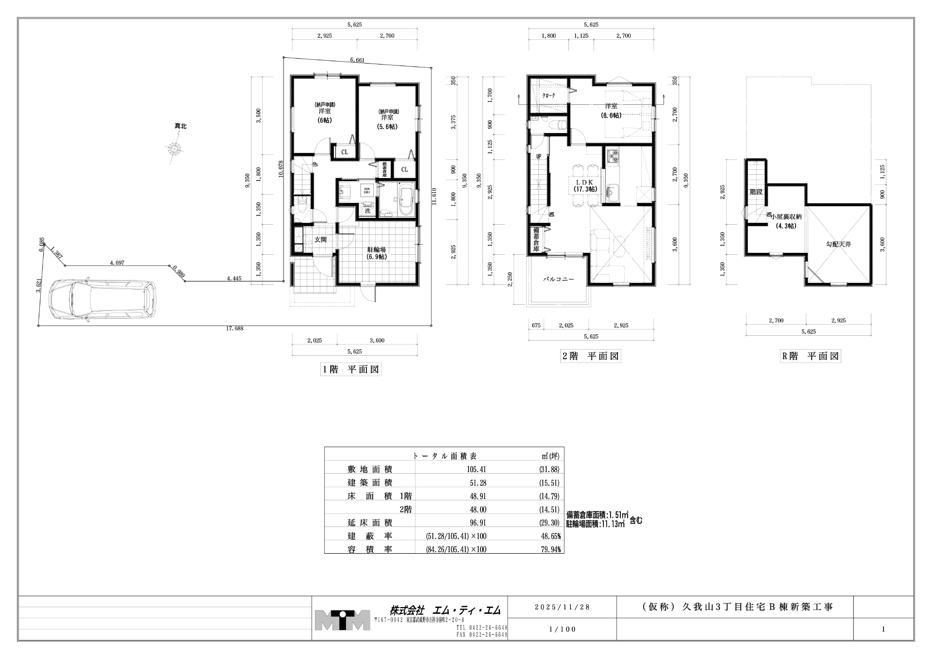
B区画-図面

分割図
| 価格 | 価格未定 | |
|---|---|---|
| 物件名 | 新築戸建 | |
| 所在地 | 杉並区久我山3丁目10 番地 | |
| 交通 | 京王井の頭線「久我山」駅 徒歩約10分 |
|
| 土地 | 地積 | A号棟:105.19㎡、B号棟:105.42㎡ |
| 敷地外持ち分 | ||
| 地目 | 宅地 | |
| 権利 | 所有権 | |
| 道路 | ||
| 建物 | 構造・規模 | 木造2階建て |
| 延床面積 | A号棟:93.01㎡、B号棟:96.91㎡ | |
| 間取り | 3LDK + 小屋裏収納 | |
| 公法上の制限 | 都市計画 | 市街化区域 |
| 用途地域 | 第一種低層住居専用地域 | |
| 建ぺい率 | 80% | |
| 容積率 | 40% | |
| 防火地域 | 準防火地域 | |
| 高度地区 | 第一種高度地区 | |
| 設備 | 公営水道・都市ガス・公共下水・東京電力 | |
| 引渡日 | 未定 | |
| 備考 | ||